












ชื่อแบบบ้าน : แบบบ้านตัวอย่าง25 (รหัส DP102)
ลักษณะตัวบ้าน : แบบบ้านชั้นเดียว, แบบบ้านเดี่ยวตึกชั้นเดียว
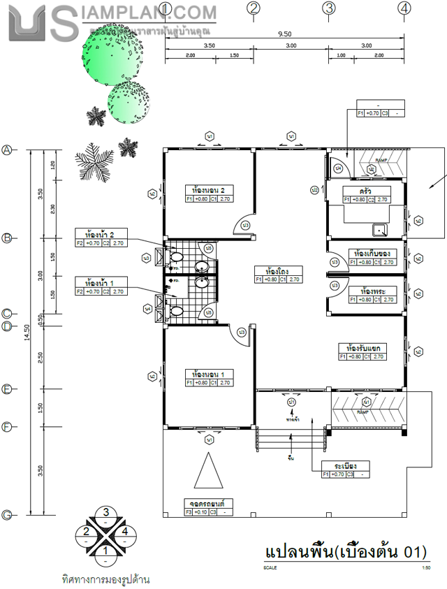
องค์ประกอบของบ้าน : 2 ห้องนอน 2 ห้องน้ำ ห้องรับแขก ระเบียง ครัว ห้องเก็บของ ห้องพระ จอดรถยนต์
พื้นที่ใช้ซอย : 138 ตารางเมตร
ขนาดที่ดินที่เหมาะสมกับแบบบ้าน : กว้าง x ยาว ไม่ควรน้อยกว่า 13.50 x 18.50 เมตร
ราคาประมาณการก่อสร้าง : 1,656,000 - 2,345,000 บาท (หากมีการเปลี่ยนแปลงทางทีมงานขอสงวนสิทธิ์ที่จะไม่แจ้งให้ทราบล่วงหน้า)
องค์ประกอบของตัวบ้าน :
- ห้องนอน 1 (ขนาด 3.50 x 4.00 เมตร)
- ห้องนอน 2 (ขนาด 3.50 x 3.50 เมตร)
- ห้องน้ำ 1 (ขนาด 1.50 x 2.00 เมตร)
- ห้องน้ำ 2 (ขนาด 2.00 x 2.00 เมตร)
- ห้องรับแขก (ขนาด 3.00 x 6.00 เมตร)
- ระเบียง (ขนาด 1.50 x 3.00 เมตร)
- ครัว (ขนาด 2.30 x 3.00 เมตร)
- ห้องเก็บของ (ขนาด 1.50 x 3.00 เมตร)
- ห้องพระ (ขนาด 1.50 x 3.00 เมตร)
- จอดรถยนต์ (ขนาด 3.50 x 9.50 เมตร)
วัสดุและอุปกรณ์ตกแต่งหลักของตัวบ้าน :
- หลังคากระเบื้องซีแพคโมเนีย
- ห้องนอน, ห้องรับแขก และครัว ปูพื้นด้วยกระเบื้องเคลือบ ขนาด 40 x 40 cm.
- พื้นห้องน้ำ ปูพื้นด้วยกระเบื้องเคลือบ ขนาด 8" x 8" ผิวด้าน สีเรียบ
- ลานซักล้าง เป็นพื้นคอนกรีตขัดมัน
- ผนังห้องโดยรวม เป็นผนังก่ออิฐมวลเบา ผิวฉาบปูนเรียบ เซาะร่องสำหรับเสาโชว์ ภายในทาสีน้ำอะคริลิคภายใน ภายนอกทาสีน้ำอะครีลิคภายนอก
- ผนังห้องน้ำและห้องครัว เป็นผนังก่อคอนกรีตบล็อก ผิวกุกระเบื้องเคลือบขนาด 20 X 30 cm. ผิวมัน ปูสูง 1.80 m.
- ฝ้าเพดานห้องโดยรวม ใช้ยิบซั่มบอร์ด หนา 9 มม. ฉาบรอยต่อเรียบ ทาสีน้ำอะครีลิค โครงเคร่าเหล็กซุบสังกะสี
- ฝ้าเพดานห้องน้ำ และห้องครัว ใช้ยิบซั่มบอร์ด หนา 9 มม. ชนิดทนความชื้น ฉาบรอยต่อเรียบ ทาสีน้ำอะครีลิค โครงเคร่าเหล็กซุบสังกะสี
- ฝ้าเพดานภายนอก ใช้ฝ้าตราช้าง สมาร์ทบอร์ด ความหนา 4 mm. ฉาบรอยต่อเรียบ ทาสีน้ำอะครีลิค โครงเคร่าเหล็กซุบสังกะสีซีลายน์ เบอร์24
ลักษณะโครงสร้างของตัวอาคาร :
- ฐานราก ทำได้ทั้ง ฐานแผ่ เสาเข็มกลุ่ม เสาเข็มตอก และเสาเข็มเจาะ ขึ้นอยู่กับคุณภาพของชั้นดิน
- ฐานราก ตอม่อ เสา คานคอดิน และคาน เป็นคอนกรีตเสริมเหล็ก
- พื้นห้องโดยรวม เป็นพื้นคอนกรีตสำเร็จรูป
- พื้นห้องน้ำทั้งหมด และพื้นระเบียงบ้านทั้งหมด เป็นพื้นคอนกรีตเสริมเหล็กเทในที่ (SLAB ON BEAM)
- พื้นลานซักล้าง และพื้นลานเอนกประสงค์ เป็นพื้นคอนกรีตเสริมเหล็กวางบนดิน (SLAB ON GROUND)
- โครงหลังคา ใช้เหล็กรูปพรรณ





